- 3 plateaux semi-aménagés de 728 m²
- Stationnements privatifs
- Environnement dynamique
- Divisibles à partir de 80m²
- Espace détente en toiture
- Blocs sanitaires dans les espaces communs
Une implantation stratégique en milieu urbain
Cet ensemble immobilier est composé de 3 bâtiments tertiaires en R+2 de 2400m² chacun. Le premier de ces trois immeubles est immédiatement disponible à la vente ou à la location.
Le programme est situé au pied de la gare de Val-de-Reuil, accessible par le train grâce à 18 liaisons quotidiennes sur l’axe Paris-Rouen-Le Havre et à proximité immédiate d’infrastructures routières majeures (A13, A154, RD 6015…). Vous y trouverez de nombreuses lignes de bus ainsi que la ligne à haut niveau de service desservant Val-de-Reuil jusqu’à Louviers en seulement 15min.
Le bâtiment présente une architecture moderne et efficace qui permet une grande flexibilité des plateaux autour d’un noyau central, avec des espaces communs optimisés et modulables pour divers besoins.
Les façades présentent de larges ouvertures, y compris des vitrages d’angle, favorisant la lumière naturelle. Ces ouvertures créent un lien entre l’intérieur et l’extérieur, renforçant la proximité avec les espaces naturels.
Outre des finitions intérieures de qualité, l’ensemble immobilier présente un abri à vélos, des parkings privatifs et offre la possibilité d’installer des bornes de recharge pour véhicules électriques.
bureaux disponibles à Val de Reuil
A l'achat ou à la location
Restent disponibles :
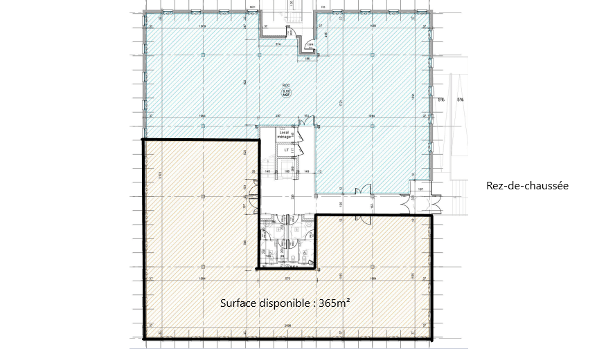
Au rez de chaussée : 365m²
Au deuxième étage : 728m²
Ces lots sont divisibles à partir de 80m².
TARIFS :
A la vente : 2 215€ HT/m² hors frais d’acte
A la location : 150€ HT/m²/an
Provisions pour charges : 35€ HT/m²/an
Le territoire Seine-Eure, un environnement dynamique
Installez votre entreprise à Val-de-Reuil et profitez d’un environnement dynamique, innovant ainsi qu’un cadre de travail exceptionnel.
Val-de-Reuil est une ville en pleine évolution, combinant l’esprit de la campagne avec une offre de services diversifiée. Vous y trouverez un ensemble d’équipements modernes et durables, des équipements sportifs, des jardins publics, des aménagements paysagers qualitatifs et de nouveaux programmes de constructions résidentielles au cœur de la verdure.
Grâce à ses infrastructures de mobilité douce, sa base de loisirs et ses lieux culturels comme le théâtre, le stade olympique ou encore le cinéma, Val-de-Reuil offre un cadre de vie et de travail exceptionnel.
Le territoire Seine-Eure est riche d’un tissu d’entreprises dense et dynamique :
– 4 700 entreprises
– 40 000 emplois
– 40% d’entreprises internationales



